1999 р. Звід пам’яток Києва
Лариса Федорова
Комплекс доброчинних закладів Терещенків Ф. А. і Н. В., кін. 19 ст.
(архіт., іст.).
Вул. Нижній Вал, 49.
Складається з трьох будинків: безкоштовних квартир, нічліжного та пологового притулків. Садиба забудована коштом підприємця, мецената Ф. Терещенка. Будинки для бідних перебували у відомстві Імператорського людинолюбного товариства. Утримувалися на відсоток з капіталу у 100 тис. крб., які пожертвували засновник та інші доброчинці.
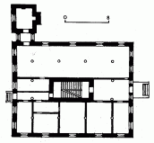
У лютому 1881 р. за рішенням Київської міської думи відведено ділянку для спорудження нічліжного притулку для бідних мешканців міста. Триповерхова, цегляна споруда, витягнута в глибину садиби, розташована головним фасадом на вул. Нижній Вал з відступом від червоної лінії забудови вулиці. Зведена в 1881 р. за проектом арх. В. Ніколаєва. Композиція фасаду симетрична, без чітких членувань, підкреслена щипцем (у центрі) із зрізаним верхом, подвійним аркатурним фризом.
Декор цегляний. Вікна великі, прямокутні. Над головним входом металеве піддашшя. Безкоштовний притулок був розрахований на 500 ліжок. Складався з чоловічого (на 456 ліжок) і жіночого з дітьми (на 44 ліжка) відділень. Реальна кількість пожильців досягала 700. Під час 1-ї світової війни в будинку містився воєнний постій.
Праворуч розташований будинок пологового притулку. Збудований в 1889 р. за проектом інж.-полковника М. Фабриціуса. Одноповерховий, цегляний, тинькований, з напівпідвалом. Від червоної лінії забудови відділений курдонером, обнесеним цегляною огорожею з невисокими металевими ґратами простого рисунка, що охоплює всю садибу. Головний вхід на осі головного фасаду акцентовано двоколонним портиком іонічного ордера і аттиком, що завершується баштою. Над входом з боку подвір’я – металеве піддашшя. Планування коридорне, з круглою вітальнею у центрі. У будинку містилися пологові відділення, палати, кабінети медперсоналу, у напівпідвалі – приміщення господарського призначення. Протягом року приймав бл. 450 породіль.
У глибині садиби поза пологовим притулком міститься будинок безкоштовних квартир Н. Терещенко. Зведений в 1886 р. за проектом арх. В. Ніколаєва. Цегляний, у плані прямокутний. Другий поверх рустований, напівпідвал з невеликими вікнами. Центр акцентовано віконними прорізами з колонками на рівні третього поверху. Головний вхід має ґанок з металевим навісом з козирком, з боку подвір’я тамбур з входом. Дах металевий, двосхилий. В будинку була загальна палата для самотніх старих жінок на 14 ліжок, 27 окремих кімнат для вдів з маленькими дітьми. Щорічно кількість мешканців тут складала бл. 170 осіб з установленою посвідкою на проживання.
Тепер у садибі міститься фізіотерапевтична лікарня № 20, у колишньому нічліжному притулку – телефонна станція. На подвір’ї розташовані також дві цегляні споруди господарського призначення.
ДАК, ф. 163, оп. 41, спр. 3139, 3681;
ЦДІАУ, ф. 442, оп. 534, спр. 132; ф. 830, оп. 1, спр. 292, 293, 395, 656;
Календарь: Справочная и адресная книга г. Киева на 1913 год. – К., 1912.
Джерело: Звід пам’яток історії і культури України. – К.: 1999 р., т. 1 (Київ), с. 235 – 236.
