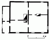
Житловий будинок
Будинок Феодосія 17 ст. (дерев.) [Пам’ятники архітектури УРСР, що перебувають під державною охороною: список. – К.: Держбудвидав, 1956 р., с. 103].
Будинок Феодосія 1688 р. (дерев.) [Постанова Ради міністрів УРСР “Про доповнення списку пам’яток містобудування і архітектури УРСР, що перебувають під охороною держави” № 442 від 6.09.1979 р.].
Будинок Феодосія 1688 р. (дерев.) [Державний реєстр національного культурного надбання: пам’ятки містобудування і архітектури України (проект). – Пам’ятки України, 1999 р., № 2-3].
