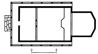
[2003 р.] План Джерело: Звід пам’яток історії і культури України. – К.: 2003 р., т. 2 (Київ), № 297-02-36b. Попередня сторінка | Вище | Наступна сторінка