1999 р. Звід пам’яток Києва
Дмитро Малаков
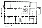
Особняк Зайцева М. Й., 1897 р.
(архіт.).
Вул. М. Грушевського, 20.
На червоній лінії забудови. Головним північно-західним фасадом – вздовж Лінії забудови вул. Шовковичної. Побудований за проектом арх. В. Ніколаєва для київського купця 1-ї гільдії цукропромисловця М. Зайцева (стара адреса – вул. Олександрівська 17). Цегляний, одноповерховий, частково з підвалом, прямокутний у плані. Фасади тиньковано пофарбовано у два світлі тони й оздоблено в стилі неокласицизму – з гладенькими пілястрами й плоским рустуванням стін, підвіконними вставками з меандром, ліпленою пальметовою стрічкою карниза. Головний фасад на одинадцять вікон розкріповано трьома псевдоризалітами, що виступають за площину стіни, – центральним і бічними. Класицистичні вухаті лиштви вікон у ризалітах додатково прикрашено сандриками їм відповідають трикутні фронтончики над глухими парапетами в ризалітах. За авторськими кресленнями там передбачалися характерні античні парапети з балюстрадою на краях парапету – пальмети на тумбах. Вхід у центрі фасаду прикривав металевий ґанок-навіс на чавунних стовпах (втрачено). Двостулкові парадні двері з трикутним фронтончиком та заскленою фрамугою оздоблено за ордерною схемою. Північно-східний фасад на сім прорізів звернений до вул. М. Грушевського, розкріповано центрально розміщеним ризалітом що відповідає внутрішній архітектоніці будинку. До ризаліту прилучався широкий ґанок з бічними сходами у садок відокремлений від лінії забудови і вуличного хідника сталевими ґратами на цегляному цоколі. Існуючі ґрати – пізнішого походження зашиті наглухо бляхою. Південно- східний фасад, звернений до сусідньої садиби, оздоблено значно скромніше так само як і південно-західний. Останній має ґанок зі сходами на господарське подвір’я. Чотирисхилий дах під бляхою зі скляним світловим ліхтарем посередині оперізано балюстрадою також пізнішого походження. Планування приміщень анфіладне з периметральним розташуванням кімнат, підпорядковане двом поздовжнім внутрішнім капітальним стінам, що ділять план нарівно. У парадних кімнатах збереглося ліплення стель, карнизів, кахляні груби та інші деталі оздоблення. Внутрішні сходи ведуть у напівпідвальні приміщення, де містилися помешкання для прислуги, комори кухні – панська й людська.
На подвір’ї, відокремленому від вул. Шовковичної тими ж ґратами з брамою, збереглися колишні двоповерхові служби, поставлені по периметру садиби, впритул до них пізніше – у 1910-х рр. – споруджено торцем прибутковий будинок. Садиба на вул. М. Грушевського, 20 тепер об’єднана з садибою колишнього особняка на вул. М. Грушевського, 22 в єдиний комплекс.
Особняк є одним із характерних зразків забудови Липок кін. 19 – поч. 20 ст.
Після 1917 націоналізований, використовувався для громадських потреб. Після 2-ї світової війни тут містилося товариство «Знання» УРСР. Нині використовується як відомча їдальня.
ДАК, ф. 163, оп. 41, спр. 5402; оп. 46, спр. 173;
Весь Киев: адресная и справочная книга на 1900 год. – К., 1900;
Календарь: адресная и справочная книга г. Киева на 1915 год. – К., 1914.
Джерело: Звід пам’яток історії і культури України. – К.: 1999 р., т. 1 (Київ), с. 346 – 347.
