Початкова сторінка

Прадідівська слава

Українські пам’ятки

Будь гордий з того, що Ти є спадкоємцем боротьби
за славу Володимирового тризуба

Богдан Хмельницький

?

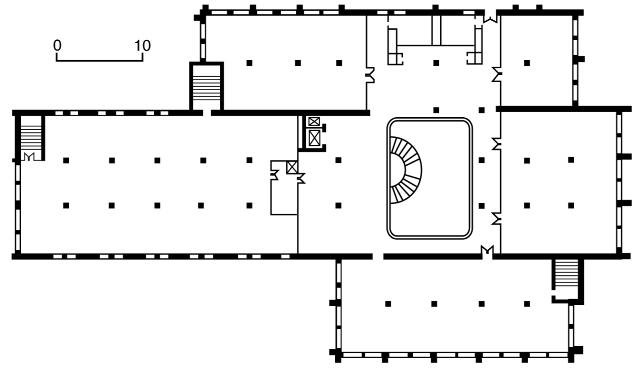
[2003 р.] План третього поверху

[2003 р.] План третього поверху

Розмір зображення: 643:372 піксел

Джерело: Звід пам’яток історії і культури України. – К.: 2003 р., т. 2 (Київ), № 443-09e.