2005 р. Церкви Холмської єпархії
Перші відомості про церкву походять з 1460 р., а дані про парафію-з 1619-1620 рр. 1 У 1690 р. парафію наново ериґували Александр Лащ і його жінка Катерина з Фірлеїв. 2 Вони ж збудували нову дерев’яну церкву. Існуюча церква збудована у 1870-1871 рр. 3 (за іншими даними – у 1864 р. 4) у неоросійському синодальному стилі. З 1918 р. перетворена на костел Вознесення Господнього. Тоді ж знищені завершення бань. 5 У 1951 р. добудовано захристію. 6
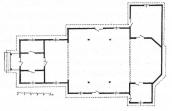
Розташована скраю села на рівній ділянці при дорозі. Орієнтована зрубна будівля. Складається з ширшої прямокутної нави, до якої зі сходу прилягає вужчий гранчастий вівтар з двома захристіями по боках (південна прибудована по 1950 р. ), а з заходу – рівноширокий вівтарю бабинець з ґанком на двох профільованих колонах з заходу. Нава вкрита чотирибічним пірамідальним верхом, увінчаним вежечкою, над вівтарем – п’ятисхилий дах, а над бабинцем – двосхилий. Над чільною частиною бабинця здіймається квадратовий ярус вежі-дзвіниці, накритий високим восьмибічним наметом. Стіни шальовані горизонтально дошками. В інтер’єрі бабинець посередині розділений стіною. У його західній частині влаштований присінок посередині, та вхід на хори і склад – по боках. Над східною частиною бабинця розташовані хори, відкриті в наву. В наві по ширині бабинця і вівтаря розташовані дві пари стовпів, які підтримують стелю. В інших приміщеннях теж пласкі стелі. Внутрішній вистрій втрачений.
1. Крип’якевич І. Церкви Холмщини і Підляшшя. – Холм, 1944. – С. 45-49.
2. Słownik geograficzny królestwa Polskiego i innych krajów słowiańskich. – Warszawa, 1893, T. 13. – S. 217.
3. ЦДІА фонд 693, опис 1, справа 585; Górak J. Dawne cerkwie drewniane w województwie Zamojskim. – Zamość, 1984. – S. 43.
4. KZSzP. Z. 6. Powiat Hrubieszowski. – Warszawa, 1964. – S. 66.
5. ЛНБ, Відділ рукописів, фонд 9, справа 4400, аркуші 53.
6. KZSzP. Z. 6. Powiat Hrubieszowski. – Warszawa, 1964. – S. 66.
Джерело: Слободян В. Церкви Холмської єпархії. – Львів: Наукове товариство ім. Шевченка, 2005 р., с. 111 – 112.
