1999 р. Звід пам’яток Києва
Марія Кадомська
Житловий будинок, кін. 19 – поч. 20 ст.
(архіт.).
Вул. Велика Житомирська, 10.
На червоній лінії забудови вулиці, на ділянці з крутим рельєфом що понижується до урочища Гончарі. Ділянка входила до складу великого землеволодіння (сучасна Велика Житомирська вул., № 10 – 14), придбаного 1858 р. А. Завойко й проданого пізніше її нащадками частинами. Ділянку з фруктовим садом, що виходив на вулицю, придбав мировий суддя І. Мацнєв і в 1881 р. за проектом арх. В. Ніколаєва розпочав будівництво тут триповерхового будинку в стилі неоготики. З 1882 р. протягом 26 років власником садиби була сім’я Меранвіль де Сен-Клер, потім Е. Кафталь. В 1909 р. за проектом арх. О. Феокритова, який мешкав у цьому будинку, надбудовано два верхніх поверхи, фасади перероблено в стилі модерн. Будинок цегляний, тинькований, у плані прямокутний, з проїздом. Композиція фасаду симетрична. Центральну вісь підкреслено розташуванням парадного входу, що трохи виступає ризалітом з п’ятигранним еркером і модерністським щипцем горищного приміщення. Верхній поверх зорово відрізаний горизонтальною лінією довгих балконів. Декор фасадів характерний для періоду раннього модерну: скульптурний (маскарони бічних розкріповок) і орнаментальний, лінеарний. Інтер’єри прикрашено вишуканим ліпленням.
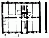
Односекційне планування характерне для прибуткового будинку: на першому поверсі, крім квартир, були крамниця і більярдна, на другому – четвертому – по дві упорядкованих п’ятикімнатних квартири. Весь п’ятий поверх (дев’ять кімнат, два передпокої, кухня, буфетна, лакейська, кімната для прислуги) займала сім’я домовласника. З квартири був вихід у зимовий сад, розміщений в еркері.
Після проведеного у 1962 р. ремонту втрачено оздоблення приміщень п’ятого поверху (дубові панелі, кахляні каміни, набірний паркет). Споруда – зразок прибуткового будинку в стилі модерн.
ДАК, ф. 100, оп. 1, спр. 1145; ф. 143, оп.2, спр.921; ф. 163, оп.41, спр. 1989.
Джерело: Звід пам’яток історії і культури України. – К.: 1999 р., т. 1 (Київ), с. 220.
