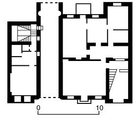
[2003 р.] План першого поверху (№ 57а)
Джерело: Звід пам’яток історії і культури України. – К.: 2003 р., т. 2 (Київ), № 486-51a.
|
[2003 р.] План першого поверху (№ 57а)
Джерело: Звід пам’яток історії і культури України. – К.: 2003 р., т. 2 (Київ), № 486-51a. |