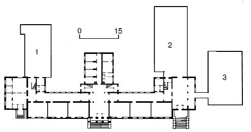
[2003 р.] План першого поверху
Прибудови: 1 – 1963; 2 – 1970; 3 – 1986.
Джерело: Звід пам’яток історії і культури України. – К.: 2003 р., т. 2 (Київ), № 306-04a.
|
[2003 р.] План першого поверху
Прибудови: 1 – 1963; 2 – 1970; 3 – 1986. Джерело: Звід пам’яток історії і культури України. – К.: 2003 р., т. 2 (Київ), № 306-04a. |