2006 р. Втрачені пам’ятки сакральної архітектури Львівщини
Курники. Церква Різдва пр. богородиці
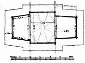
Оригінальна дерев’яна церква галицького типу, зведена в 1616 році. Наприкінці XVIII століття до північної стіни вівтаря добудували прямокутну захристію. У кінці наступного століття храм розбудували – до первісних квадратової нави й трапецієвих вівтаря й бабинця додали два прямокутні бічні рамена. Утворилася цікава хрещата будівля. Наву її вінчала наметова баня з ковніром, посаджена на низький світловий восьмерик. Вівтар і бабинець покривали двосхилі причілкові дахи з острішками, гребені яких не доходили до нижнього краю бані. Високі зруби бічних рамен покривали трисхилі дахи, їхні гребені сягали верхнього краю ковніра. Оперізувало будівлю піддашшя, сперте на випусти вінців зрубів. Усередині простір нави розкривався у висоту, вівтар і бабинець перекривали зімкнені склепіння. Вузькі хори тягнулися вздовж західної стіни бабинця. Церкву розібрали в 1926 році.
Січинський В. Дзвіниці і церкви Галицької України XVI-XIX ст. – С. 44.
Джерело: Слободян В. Втрачені пам’ятки сакральної архітектури Львівщини: церкви. – Пам’ятки України, 2006 р., № 3, с. 49.
