Прадідівська слава
Українські пам’ятки
Будь гордий з того, що Ти є спадкоємцем боротьбиза славу Володимирового тризуба
X
Повідомлення (0/1000)
Не знайшли потрібного?
1) Змініть пошуковий вираз та / або додаткові налаштування пошуку;
2) Шукайте в іншому розділі сайту;
3) Скористайтесь пошуком Google по всьому сайту:
^Україна
^Харківська область
^Харків м
^Вулиці
^Пушкінська вул.
^2-е міське кладовище (№ 102)
Ситуаційний план
– Могила Г. Квітки-Основ’яненка
– 1975 р. Паспортна інформація
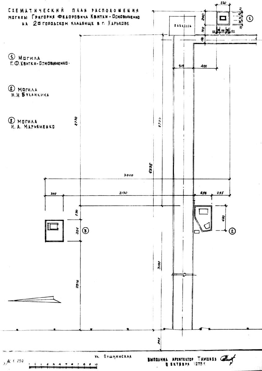
Схематичний план розташування могили
Фото пам’ятника. Загальний вигляд
Фото напису на чільному боці пам’ятника
Фото напису на тильному боці пам’ятника
Ще 2 рівня
Ще 3 рівня
Розмір зображення: 846:1200 піксел
Вище | Наступна сторінка