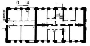
[2003 р.] План другого поверху адмін, корпусу
Джерело: Звід пам’яток історії і культури України. – К.: 2003 р., т. 2 (Київ), № 434b.
|
[2003 р.] План другого поверху адмін, корпусу
Джерело: Звід пам’яток історії і культури України. – К.: 2003 р., т. 2 (Київ), № 434b. |