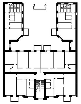
[2003 р.] План другого поверху (№ 89)
Джерело: Звід пам’яток історії і культури України. – К.: 2003 р., т. 2 (Київ), № 486-53a.
|
[2003 р.] План другого поверху (№ 89)
Джерело: Звід пам’яток історії і культури України. – К.: 2003 р., т. 2 (Київ), № 486-53a. |